Arena Media
La dificultad de definir un entorno físico estable ante la dinámica demoledora de la expansión empresarial de Arena Media nos llevó a convertir la arquitectura en un fenómeno, dotándola de la capacidad de aparecer, transformarse y desaparecer.
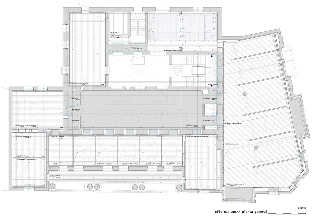
La Agencia de Medios Arena Media Communications en Madrid decidió llevar a cabo la reforma de sus oficinas con un doble objetivo: maximizar el espacio para albergar un mayor número de empleados y establecer una nueva imagen comercial hacia los clientes y medios de comunicación. La estrategia inicial para resolver un programa tan complejo como el de esta oficina, con alrededor de ochenta trabajadores en continuo cambio de funciones, partió de la idea de situarnos como mediadores entre Arena y el edificio histórico en el que se desarrolla, de la misma forma que Arena es la encargada de mediar entre empresa anunciantes y medios de comunicación.
El esquema funcional persigue la eliminación de pasillos y lugares infrautilizados, ofreciendo un sistema flexible que se apoya en los muros de carga existentes como contenedores de espacio. Para ello se organiza alrededor de una sala polivalente, que denominamos Sala Arena. Se trata de un espacio de distribución, de descanso o espera, de recepción, de reunión, de proyección y exposiciones de empresa, de café y en última instancia de show-room que puede ser personalizado en función de cada cliente.
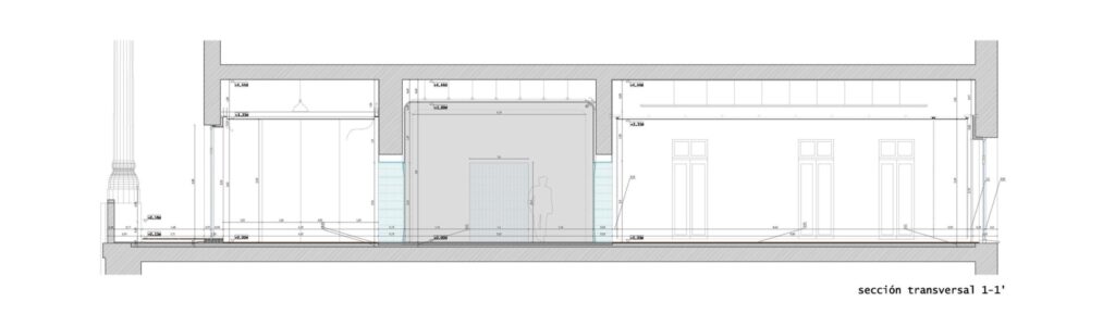
El proyecto actúa en todo momento como una lámina o una plataforma de proyección y retro-proyección de dos realidades: actividad y edificio existente. Se resuelven así todos los elementos necesarios en la oficina: puertas, ventanas, techos, suelos, accesos, pasillos… La actividad se proyecta con luz artificial con colores asociados, proporcionando información de unos espacios a otros, y la realidad física del edificio se retro-proyecta a través de sombras o texturas veladas. Los espacios resultantes son difíciles de definir debido a su carácter cambiante, sin esquinas ni detalles que permitan identificar los fragmentos. Una puerta se percibe literalmente como una proyección en la pared, y en otro momento se convierte en un panel de información sobre la reunión que se lleva a cabo detrás de ella; un trozo de pared se transforma en velo, permitiendo ver la sombra de las ventanas del patio que oculta detrás y en pocos segundos se oscurece, ofreciéndose como pantalla de video.
























