Skip to content

Casa para un coleccionista

Toda colección es un teatro para los recuerdos. Detrás de este espectáculo siempre existe un escenario adecuado capaz de ordenar  un mundo infinito de experiencias que han sido traducidas a objetos. Toda colección es una forma de llenar un vacío que sacie el deseo, que ocupe una pared o que rellene una estantería. Toda colección construye una casa. Una casa que es una colección y una colección que es una casa.

Toda colección reúne siempre dos extremos distantes: la pasión y el orden. Lo emocional selecciona el objeto entre miles de objetos, lo cerebral lo coloca en un sitio determinado, aquel para el que ha sido elegido. Es un doble movimiento que atrapa al coleccionista en proceso imparable. Una vez se empieza lo único que queda es seguir coleccionando libros, cds, postales, vinilos, muñecas…familias de objetos que caracterizan a cada coleccionista. Familias de objetos que convocan un tiempo en concreto, un lugar, una persona ….

Toda colección necesita un espacio para ser acumulada, para ser protegida y para ser exhibida. No existe colección sin estantería, sin cofre en el que poder depositar los tesoros mas queridos. La tensión entre este mueble y el reducido espacio disponible determinará el proyecto en esta reforma de apartamento para un ávido coleccionista.

La casa y el mueble

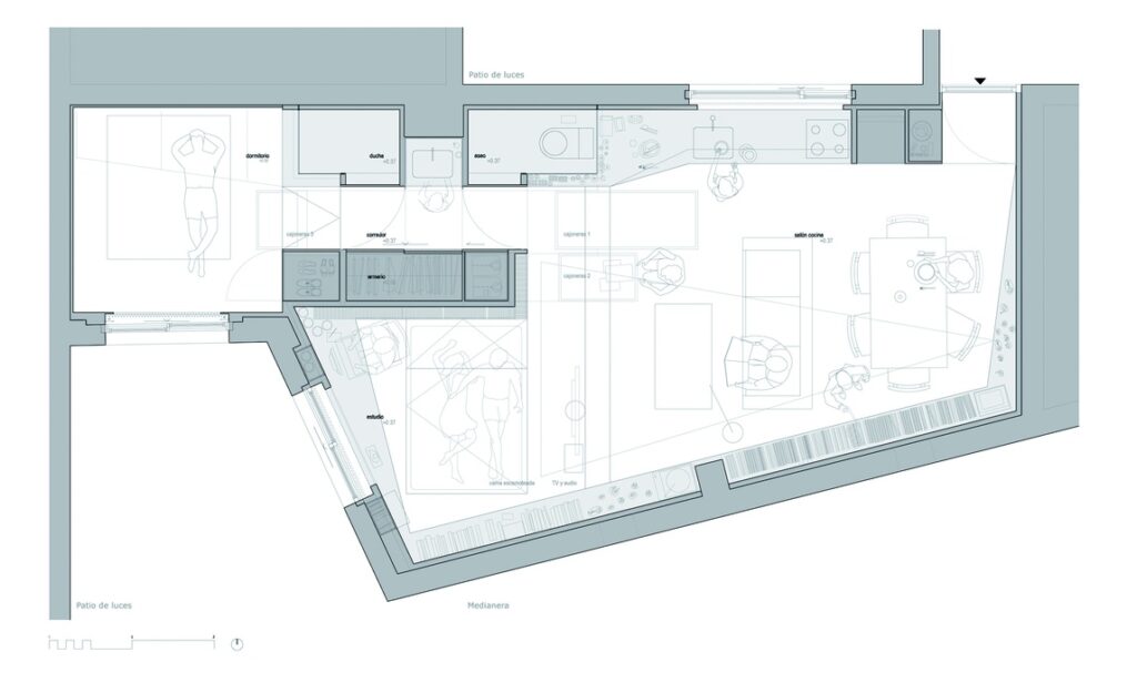
El espacio de trabajo, apenas 45m2 de superficie útil, fuertemente compartimentado (cocina, salón, baño y dos dormitorios) y con unas condiciones de confort mas que deficientes (iluminación a través de dos patios interiores, escaso aislamiento en muro medianero y cubierta ) obligaban a una reestructuración total del apartamento. Si a esto le añadimos la ingente cantidad de objetos acumulados a lo largo de mas de 30 años el resultado era una infravivienda repleta de artículos desperdigados por el suelo o acumulados en dispares y improvisados muebles que terminaban por abigarrar  el espacio.

La falta de una infraestructura adecuada para almacenamiento y exhibición planteaba la posibilidad de reducir la intervención a un solo elemento neutro y continuo que ordenase objetos y espacios, luz y programa,  capaz además de dotar a la vivienda de una inercia adecuada para invierno y verano. Se opta así por desarrollar a lo largo de todo el perímetro de la vivienda un mueble blanco que, separado de pared y techo, resolviese todos los requerimientos de tan singular programa. Estantería, estudio, dormitorio, cocina, aseos y armarios se unían en un único elemento  sustentado en los muros y que superponía distintos huecos a los ya preexistentes en la vivienda. La casa quedaba así forrada por el soporte de la colección. Una subestructura metálica interior forrada por madera y placas tipo CORIAN permitirán fabricar un elemento flexible, adaptable y continuo. Ni una sola junta aparece en este objeto.

En la entrada, el mueble se presenta como una estantería corrida para continuar plegándose en un espacio recogido, un estudio que albergaba bajo su suelo un dormitorio y un vasto lugar de almacenaje. La cama aparece al plegarse el tablero que le sirve de soporte el cual se convierte en una improvisada pantalla de de proyección. Armario y local húmedo (separado en tres piezas independientes, ducha, lavabo) continúan el recorrido para mutar en un gran mueble de cocina que cierra toda la intervención. El entusiasmado coleccionista encuentra en este proyecto otro gran juguete gracias a un sinfín de lugares escondidos, escamoteados en estanterías y armarios.

El mueble blanco y flotante se envuelve en un espacio pintado en negro lo que permite que la vivienda se convierta en un pequeño cine para deleite de nuestro coleccionista. Un coleccionista que  en el interior de la colección ha sido coleccionado.

Contenido relacionado

This site is registered on wpml.org as a development site. Switch to a production site key to remove this banner.