JARDIN DE HUMO
Un gigantesco macetero es introducido en el interior de una nave industrial para la construcción de un seductor jardín de interior, de helechos, de vapor y de humo de los cigarros para la sede de un selecto club de fumadores…
Jaén. Una nave industrial en un antiguo olivar. Una nave cuyo suelo parece haber tapado la tierra de años y años de cultivo. Sobre este una sencilla cubierta metálica y unos muros de losas prefabricadas, nada más. Vaciada los restos de años y años de almacenaje, de carros, de paquetes, de camas, de ladrillos, de colchones, armarios y sillas se queda libre para un nuevo y peculiar uso: la sede de un selecto club, como aquellos de hace tanto tiempo donde la gente pagaba por un lugar agradable , separado del resto de la ciudad para descansar, hablar, leer y fumar…
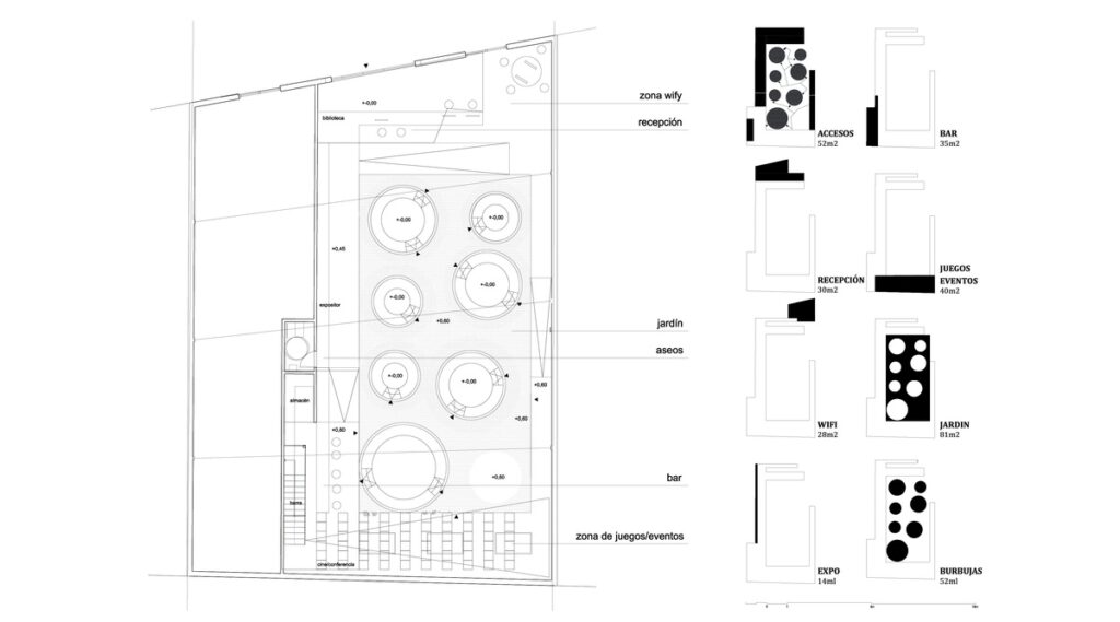
El principal problema de un espacio de este tipo es el humo. Conciliar el confort con el uso previsto para este local planteaba el reto mas importante. La solución estaba ya allí, debajo, en la tierra que tapaba la solera de hormigón. La posibilidad de romper esa solera para plantar un jardín nos permitía crear un sistema natural capaz de absorber las emanaciones del local. La imagen era además muy sugerente, estar en el jardín, sobre el sustrato rescatado bajo la nave en el interior de un pequeño zócalo extrusionado 1,20m sobre la rasante actual del local. Este gigantes macetero se colmataba de tierra fértil procedente los terrenos de cultivo adyacentes. Plantas de interior se reparten cuidadosamente (principalmente de la familia de los helechos) por este nuevo suelo que es además ahuecado en distintos puntos para acoger espacios de reunión para 2-3-6-8 personas. Salones excavados, en definitiva, para reír, para hablar y ,como no, para fumar. Por encima del jardín, a 9 metros y a modo de espejo, una malla metálica de 7,5×7,5 sirve de soporte para un trama de mangueras de riego translúcidas entre las que se intercalan tubos de led. Mas de 40 km de manguera son necesarias para densificar este espacio virtual, cambiante, irreal en el que se tallan pequeñas cúpulas translúcidas que se disponen sobre los salones en el jardín. Esos lugares tienen un régimen de iluminación diferente, controlable desde la mesa central del salón, iluminados según los deseos de unos amigos que ríen, hablan y ,como no, fuman.
Difusores y pulverizadores de vapor de agua se mezclan con el humo y con la vibración de los filamentos translúcidos para completar una seductora y densa atmósfera escondida en el interior de una nave agrícola que ya hemos pintado de negro a la espera…











